Listing Tools

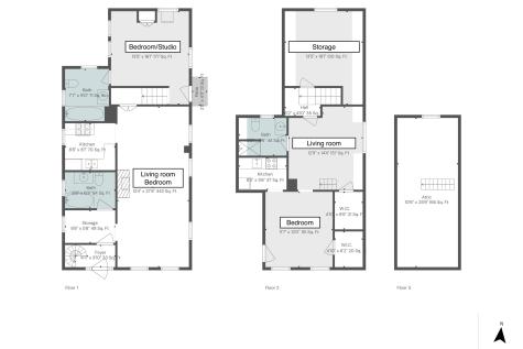
Offered for sale for the first time in over 50 years, this antique three-family residence presents a rare development opportunity in Provincetown at a unique price. Spanning 1,362 square feet, the property features two studio apartments on the first floor and a spacious one-bedroom unit with an attic and bonus room on the second floor. This level lot enjoys abundant natural light throughout the day and offers room for potential expansion. The property could convey with architectural drawings for a fully reimagined over 2,000 square foot three-family residence. Betterment has been paid in full.Don't miss this opportunity to either pursue a multi-unit development project or create your own single-family home in Provincetown.

Property Details of 37 D Court Street

Property Details

Interior Features

Exterior Features

Map Location

Driving Directions

Listed by Iskren ''Isi'' Georgiev of Gibson Sotheby's International Realty (7742125532)

broker reciprocity The data relating to real estate for sale on this site comes from the Broker Reciprocity (BR) of the Cape Cod & Islands Multiple Listing Service, Inc. Summary or thumbnail real estate listings held by brokerage firms other than Premier Commercial are marked with the BR Logo and detailed information about them includes the name of the listing broker. Neither the listing broker nor Premier Commercial shall be responsible for any typographical errors, misinformation, or misprints and shall be held totally harmless.

This site was last updated February 13, 2026 11:51 PM EST. All properties are subject to prior sale, changes, or withdrawal.

Premier Commercial has chosen to display only certain towns and/or types or styles of properties. This site may not show all listings that are available through the Cape Cod & Islands Multiple Listing Service, Inc.

Hi there! How can we help you?

Contact us using the form below or give us a call.

Send Us A Message:

I agree to receive marketing and customer service calls and text messages from Premier Commercial. To opt out, you can reply 'stop' at any time or click the unsubscribe link in the emails. Consent is not a condition of purchase. Msg/data rates may apply. Msg frequency varies. Privacy Policy.

Do not fill in this field:

This site is protected by reCAPTCHA and the Google Privacy Policy and Terms of Service apply.

Hi there! How can we help you?

Contact us using the form below or give us a call.

Send Us A Message:

Do not fill in this field:

This site is protected by reCAPTCHA and the Google Privacy Policy and Terms of Service apply.

Hi there! How can we help you?

Contact us using the form below or give us a call.

Send Us A Message:

Do not fill in this field:

This site is protected by reCAPTCHA and the Google Privacy Policy and Terms of Service apply.

Do not fill in this field:

This site is protected by reCAPTCHA and the Google Privacy Policy and Terms of Service apply.

Do not fill in this field:

This site is protected by reCAPTCHA and the Google Privacy Policy and Terms of Service apply.

Do not fill in this field:

This site is protected by reCAPTCHA and the Google Privacy Policy and Terms of Service apply.

$

Do not fill in this field:

This site is protected by reCAPTCHA and the Google Privacy Policy and Terms of Service apply.